Sign up to get new listings emailed daily! JOIN SIGN IN
Kirsten Perkins
REALTOR®
VCard Icon 
Refine Search

M4 L89-e Fiske Lane, Bristol, ME 04539

$875,000
  • Main Photo

31 Total Photos [Click to View All]

New to the Market Active
BEDS2 BATHS2 full SQUARE FEET1,609 MLS#1657532
STATUSActive PROPERTY TYPEResidential - Single Family

Property Description

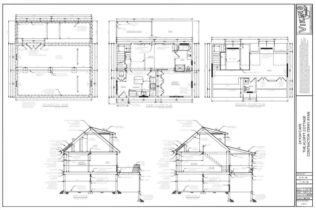
This is a TO BE BUILT HOME: Home will not begin until there is a interested party, and the Seller could build you ANY home, it doesnt have to be this one. Tucked into a quiet, private corner of Midcoast Maine, this 3.74± acre parcel is the kind of property people wait for. Situated at the intersection of Fiske Lane and Soldiers Cove, it offers a blend of natural beauty and convenience that's hard to come by. The lot has already been partially cleared, giving you a head start while still leaving plenty of room to shape it into exactly what you want. With the potential for views overlooking Johns Bay, you'll have that coastal Maine feel without sacrificing peace and privacy. It's just far enough away to feel like an escape, but close enough to enjoy everything Bristol has to offer.

M4 L89-e Fiske Lane | MLS# 1657532

This single family home located at M4 L89-e Fiske Lane, Bristol, ME 04539 is currently listed for sale with an asking price of $875,000. This property was built in 2025 and has 2 bedrooms and 2 full baths with 1609 sq. ft. Search Bristol real estate on kirstenperkins.masiellogrouprealestate.com today.

Property Features

Property Type: Residential - Single Family
Basement: Interior Entry
Heating: Baseboard, Hot Water, Radiant
Home Style: Cape Cod
Lot Size: 3.74 Acres
Roof Type: Shingle
Taxes: $975
Year Built: 2025

Feature Descriptions

Association Fee: $450/Annually
Electric: Circuit Breakers
Flooring: Tile, Wood
Sewer: Private Sewer, Soil Test Available, Septic Design Av
Special View Info: Trees/Woods
SQ FT Above Grade: 1609
SQ FT Below Grade: 0
Total Rooms: 5
Water: Private, Well
Water Body Name: St. Johns Bay
Wooded: Yes

Room Sizes

Kitchen: Level - First
Living Room: Level - First
Primary Bedroom: Level - Second
Dining Room: Level - First
Bedroom 2: Level - First

Listed By / Shown By

Listed By

Agency Name: Lone Pine Real Estate Company
Agency Contact: info@lonepinere.com
Agent Name: Ann Daggett

IDX logo

TOUR THIS HOME

Choose a date and time to see M4 L89-e Fiske Lane, Bristol, ME 04539.
I will get in touch with you shortly.

Request a Showing
Choose your video chat app
  • Saturday April 18
  • Sunday April 19
  • Monday April 20
  • Tuesday April 21
  • Wednesday April 22
  • Thursday April 23
  • Friday April 24
  • Saturday April 25
  • Sunday April 26
  • Monday April 27
  • Tuesday April 28
  • Wednesday April 29
  • Thursday April 30
  • Friday May 1
  • Saturday May 2
  • 7:00 AM
  • 7:30 AM
  • 8:00 AM
  • 8:30 AM
  • 9:00 AM
  • 9:30 AM
  • 10:00 AM
  • 10:30 AM
  • 11:00 AM
  • 11:30 AM
  • 12:00 PM
  • 12:30 PM
  • 1:00 PM
  • 1:30 PM
  • 2:00 PM
  • 2:30 PM
  • 3:00 PM
  • 3:30 PM
  • 4:00 PM
  • 4:30 PM
  • 5:00 PM
  • 5:30 PM
  • 6:00 PM
  • 6:30 PM
  • 7:00 PM
  • 7:30 PM
  • 8:00 PM
  • 8:30 PM
  • 9:00 PM
Preferred Communication Method

Estimate Your Payment

Estimated Payment

$ 2,283.83 per month $1,947.37 Principal & Interest $81.25 Property Tax $255.21 Homeowner's Insurance

Change Payment Information

%
years/fixed
yearly
yearly (est.)
(Payments are an estimate and may vary by lender)
Disclaimer: All information deemed reliable but not guaranteed. All properties are subject to prior sale, change or withdrawal. Neither listing broker(s) or information provider(s) shall be responsible for any typographical errors, misinformation, misprints and shall be held totally harmless. Listing(s) information is provided for consumers personal, non-commercial use and may not be used for any purpose other than to identify prospective properties consumers may be interested in purchasing. Information on this site was last updated 04/17/2026. The listing information on this page last changed on 04/17/2026. The data relating to real estate for sale on this website comes in part from the Internet Data Exchange program of Delta Media Group MLS (last updated Fri 04/17/2026 12:53:10 PM EST) or MLSPIN MLS (last updated Fri 04/17/2026 12:51:09 PM EST) or Prime MLS (last updated Fri 04/17/2026 12:43:04 PM EST) or MREIS (last updated Fri 04/17/2026 12:46:21 PM EST). Real estate listings held by brokerage firms other than Better Homes and Gardens Real Estate The Masiello Group may be marked with the Internet Data Exchange logo and detailed information about those properties will include the name of the listing broker(s) when required by the MLS. All rights reserved.



Listing data is derived in whole or in part from the Maine IDX & is for consumers' personal, noncommercial use only. Dimensions are approximate and not guaranteed. All data should be independently verified.© 2026 Maine Real Estate Information System, Inc. All Rights Reserved.

Privacy Policy / DMCA Notice / ADA Accessibility

Agency License Information: Better Homes and Gardens® and the Better Homes and Gardens Real Estate Logo are registered service marks owned by Meredith Corporation and licensed to Better Homes and Gardens Real Estate LLC. The Masiello Group Limited fully supports the principles of the Fair Housing Act and the Equal Opportunity Act. Each franchise is independently owned and operated. Any services or products provided by independently owned and operated franchisees are not provided by, affiliated with or related to Better Homes and Gardens Real Estate LLC nor any of its affiliated companies.


Login to My Homefinder

Pixel